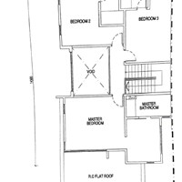
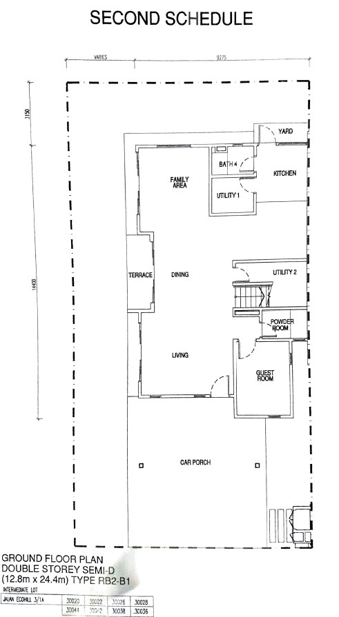
ID Drawing for Double Storey at EcoHill ID Drawing for Double Storey:- ADDRESS: NO 58 JALAN ECOHILL 3/1A 1) GROUND FLOOR PLAN DOUBLE STOREY SEMI-D (12.8mx 24.4m) TYPE RB2-B1 2) FIRST FLOOR PLAN DOUBLE STOREY SEMI-D (12.8mx 24.4m) TYPE RB2-B1 Size : NA Origin Country Malaysia RM 3250.00 /50% deposit Market Selling : RM 3500.00 Bulk Saving : RM 250.00 / 7.14% Quantity Share99 Products : 504